Caldeiras a lenha – aquecimento económico, fiável e tradicional para casas e empresas
Caldeiras a Lenha – aquecimento económico, fiável e tradicional para casas e empresas
O aquecimento com lenha continua a ser uma das soluções mais estáveis e economicamente justificadas para os lares. Em tempos de preços de energia flutuantes e incerteza no mercado, muitos proprietários de casas e de propriedades maiores procuram um sistema fiável que ofereça elevada potência, custos previsíveis e funcionamento a longo prazo. É exatamente por isso que as Caldeiras a Lenha continuam a ocupar um lugar importante entre as soluções de aquecimento preferidas.
Este tipo de aquecimento caracteriza-se por uma elevada eficiência quando a potência é corretamente selecionada e a instalação é adequadamente projetada. Uma vantagem adicional é a disponibilidade de lenha em muitas regiões, o que torna os custos de funcionamento mais fáceis de planear. Com uma boa manutenção e utilização correta, uma caldeira a lenha pode proporcionar aquecimento estável durante muitos anos sem necessidade de automação complexa ou infraestrutura dispendiosa.
.png)
O que é uma caldeira a lenha
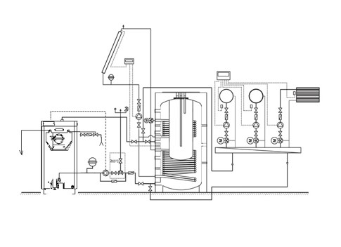
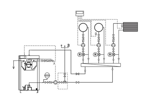
Uma caldeira a lenha é um equipamento de aquecimento para um sistema de aquecimento central que utiliza combustível sólido (lenha) para aquecer água. A água aquecida circula através de um sistema de tubagens até aos radiadores ou ao aquecimento por piso radiante, proporcionando uma temperatura uniforme em todo o edifício.
Ao contrário dos fogões e lareiras convencionais, a caldeira foi concebida para aquecer toda a casa ou instalação, e não apenas uma divisão. Funciona como a principal fonte de calor e pode ser combinada com um depósito de inércia para maior eficiência e carregamentos menos frequentes. Dependendo do modelo e da construção, as caldeiras podem oferecer diferentes níveis de eficiência e controlo da combustão. As soluções modernas são projetadas para otimizar a combustão da lenha e reduzir as perdas de calor, tornando-as adequadas tanto para edifícios novos como para a modernização de sistemas de aquecimento existentes.

Como funciona uma caldeira a lenha
O processo de funcionamento das caldeiras a lenha baseia-se na queima de combustível sólido e na transferência do calor gerado para uma camisa de água (permuta de calor). Depois de a lenha ser acesa, o calor produzido é utilizado para aquecer a água no interior da caldeira. Uma bomba de circulação distribui a água quente pelo sistema de aquecimento, após o que a água arrefecida regressa à caldeira para ser novamente aquecida.
Os modelos modernos podem ser divididos em vários tipos principais:
- Caldeiras standard com tiragem natural
- Caldeiras com ventilador para tiragem forçada
- Caldeiras de pirólise (gasificação) com maior eficiência
As caldeiras de pirólise asseguram uma combustão mais completa dos gases da madeira, o que resulta em menor consumo de combustível e redução de emissões.


Aplicações adequadas para caldeiras a lenha
As caldeiras a lenha são adequadas para propriedades equipadas com um sistema de aquecimento à base de água. São mais frequentemente utilizadas em:
- Moradias unifamiliares
- Casas de férias e propriedades rurais
- Pequenos edifícios de apartamentos
- Oficinas e armazéns
- Pavilhões industriais
- Edifícios públicos em áreas sem rede de gás
São especialmente eficientes em regiões onde a lenha é facilmente acessível e economicamente vantajosa.
Como escolher a potência adequada
Selecionar a potência correta é um dos fatores mais importantes na compra de uma caldeira. Uma potência insuficiente não proporcionará conforto adequado, enquanto uma potência excessiva levará a um funcionamento ineficiente e a um consumo desnecessário de combustível.
Os seguintes fatores são considerados ao determinar a potência necessária:
- Área total do piso
- Altura do teto
- Isolamento térmico
- Tipo de janelas e portas
- Zona climática
Como orientação geral, 1 kW de potência pode aquecer aproximadamente 10 m² com bom isolamento e altura de teto padrão. Por exemplo, para uma casa de 150 m², recomenda-se normalmente uma caldeira com potência entre 15 e 20 kW.
Principais vantagens das caldeiras a lenha
As caldeiras a lenha são preferidas devido a várias vantagens importantes. Proporcionam aquecimento económico e uma longa vida útil, especialmente quando fabricadas em aço de alta qualidade.
Os seus principais benefícios incluem:
- Baixo custo do combustível
- Elevada capacidade de aquecimento
- Adequadas para grandes áreas
- Relativa independência dos fornecedores de energia
- Menor investimento inicial em comparação com sistemas automatizados como Caldeiras a Pellets ou conjuntos completos de Conjuntos de Pellets
Desvantagens a considerar
Apesar das suas vantagens, as caldeiras a lenha exigem maior envolvimento do utilizador. Não são totalmente automatizadas e necessitam de manutenção regular.
As principais desvantagens incluem:
- Carregamento manual do combustível
- Necessidade de espaço para armazenamento da lenha
- Limpeza periódica das cinzas
- Nível de conforto inferior em comparação com sistemas a pellets, como as Salamandras a Pellets para Aquecimento Central
Diferença entre caldeiras a lenha e caldeiras a pellets
Caldeiras a Pellets são uma alternativa moderna aos sistemas tradicionais de Caldeiras a Lenha. A principal diferença reside no nível de automação e no método de alimentação do combustível.
Uma caldeira a lenha é carregada manualmente e requer monitorização regular. O investimento inicial é normalmente mais baixo, e o combustível é frequentemente mais barato e mais amplamente disponível.
Uma caldeira a pellets possui alimentação automática de combustível, controlo eletrónico e modos de funcionamento programáveis. Isto proporciona maior conforto e controlo de temperatura mais preciso, mas o investimento inicial é mais elevado.
A escolha entre as duas opções depende do orçamento, do nível de automação desejado e da disponibilidade de combustível na região específica.
Diferença entre uma caldeira a lenha e salamandras a pellets para aquecimento central
Uma salamandra a pellets para aquecimento central também pode ser ligada a um sistema de aquecimento, mas geralmente tem menor potência e combina principalmente a função de aquecimento com um efeito decorativo.
Uma caldeira a lenha é projetada principalmente para aquecimento contínuo e eficiente de um edifício inteiro, oferecendo maior potência e melhor eficiência durante o funcionamento a longo prazo.
O que verificar antes da compra
Antes de tomar uma decisão final, é importante prestar atenção às especificações técnicas e à qualidade de construção.
Os principais parâmetros a considerar incluem:
- Potência nominal (kW)
- Eficiência (eficiência térmica)
- Espessura do aço
- Tipo de câmara de combustão
- Presença de ventilador
- Compatibilidade com depósito de inércia
- Condições de garantia e suporte de serviço
Qual a lenha mais adequada
A eficiência de uma caldeira a lenha depende não só do modelo, mas também da qualidade do combustível utilizado. Os melhores resultados são obtidos com espécies de madeira dura e seca, tais como:
- Carvalho
- Faia
- Carpinheiro
O teor de humidade da lenha deve ser inferior a 20%, pois a madeira molhada reduz a eficiência e aumenta o depósito de fuligem.

Perguntas frequentes (FAQ)
Com que frequência é necessário carregar uma caldeira a lenha?
Normalmente, o carregamento é necessário a cada 3 a 6 horas, dependendo da potência da caldeira, das temperaturas exteriores e do isolamento do edifício.
Uma caldeira a lenha pode funcionar sem eletricidade?
Alguns modelos com circulação natural podem funcionar sem eletricidade, mas a maioria dos sistemas utiliza uma bomba de circulação e requer fornecimento de energia.
É necessária uma chaminé especial?
Sim, uma chaminé dimensionada corretamente é essencial para uma boa tiragem e funcionamento seguro do sistema.
Qual é a vida útil de uma caldeira?
Com manutenção adequada, uma caldeira pode funcionar entre 10 e 20 anos.
Quanta lenha é necessária para uma época de aquecimento?
Em média, uma casa de 120–150 m² requer entre 8 e 15 metros cúbicos de lenha, dependendo da qualidade do isolamento e das condições climáticas.
As caldeiras a lenha continuam a ser uma solução de aquecimento prática e económica, especialmente em áreas sem rede de gás. Proporcionam elevada potência e custos de funcionamento relativamente baixos, mas exigem maior envolvimento do utilizador.
A escolha correta depende do tamanho da propriedade, do orçamento disponível e do nível de conforto desejado. Quando selecionada adequadamente e instalada por profissionais, uma caldeira a lenha pode fornecer aquecimento fiável durante muitos anos.
Veja também:



